Via Roma, Pescate, Lecco, Lombardia, 23852, Italia
In vendita
€169.000,00














Proponiamo in vendita un luminoso trilocale a Pescate con balcone vista lago, a pochi minuti da Lecco.
Situato al primo piano di un contesto condominiale tranquillo e ben curato, l’appartamento si distingue per la sua posizione strategica e per la vista panoramica sul lago e sulle montagne circostanti.
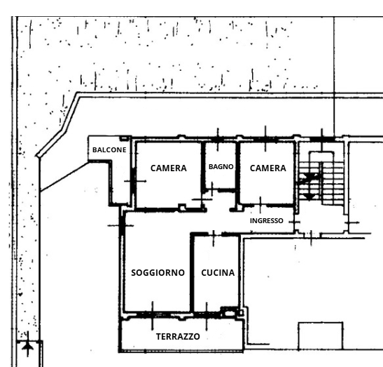
L’immobile è così composto: ingresso, cucina abitabile e soggiorno luminoso con accesso al balcone con vista, camera matrimoniale con balconcino privato, camera singola e bagno finestrato.
A completare la proprietà un box singolo per un valore € 20.000, oltre a una cantina di pertinenza.
Pescate rappresenta la scelta ideale per chi desidera vivere in un contesto riservato e immerso nel verde, senza rinunciare alla comodità dei servizi. La vicinanza a Lecco consente di raggiungere rapidamente il centro città, mentre la presenza della SS36 garantisce un collegamento diretto verso Milano e le principali arterie autostradali, rendendo l’immobile perfetto anche per i pendolari.
Per informazioni ed eventuali visite a questo trilocale a Pescate con balcone vista lago potete trovarci presso la nostra Agenzia Immobiliare di Mandello Del Lario in Via Dante Alighieri 22, al numero 0341 702073 oppure al nostro indirizzo mail: [email protected]