Via Alessandro Volta, Cascina Benpensata, Sorino, Casirago, Monticello Brianza, Lecco, Lombardia, 23876, Italia
In vendita
€480.000,00








Proponiamo in vendita area di rigenerazione urbana in Monticello Brianza.
In base alle norme del PGT vigente, le destinazioni d’uso ammesse in queste area, possono includere: residenziale, commerciale, uffici e attività relative ai servizi.
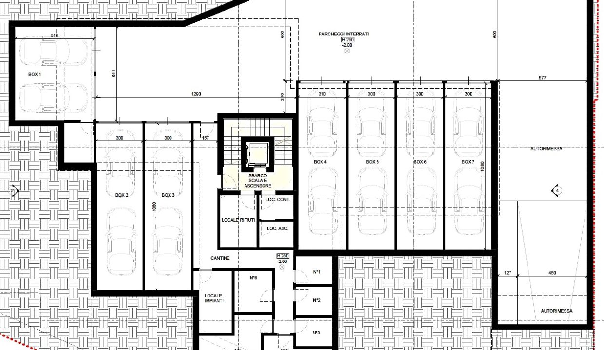
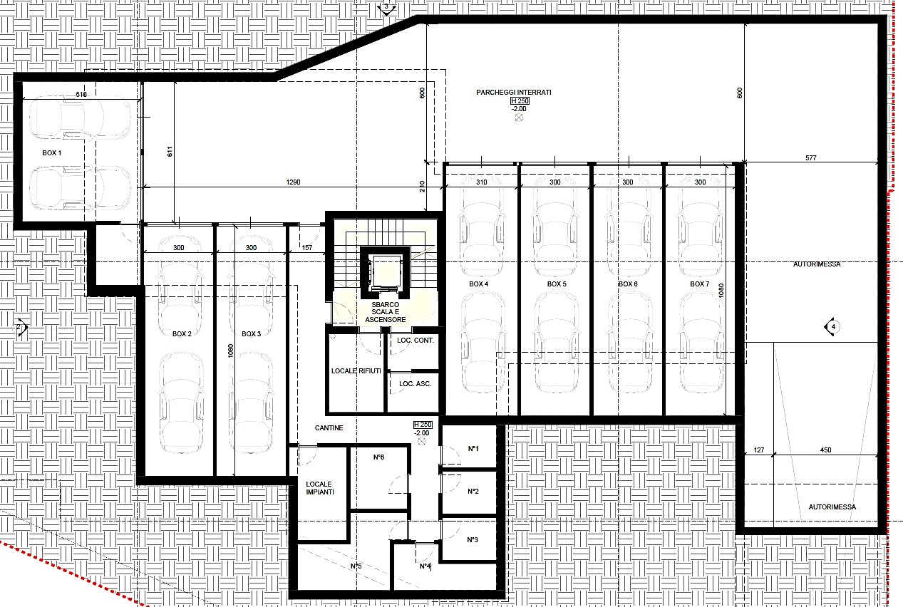
Questa area di rigenerazione urbana si compone di un edificio da demolire di 1740 mc, in base alla normativa vigente delle area di riqualificazione sarà possibile edificare circa 2400 mc pari a 800 mq.
E’ inoltre presente un’area esterna cortilizia di circa 1300 mq.
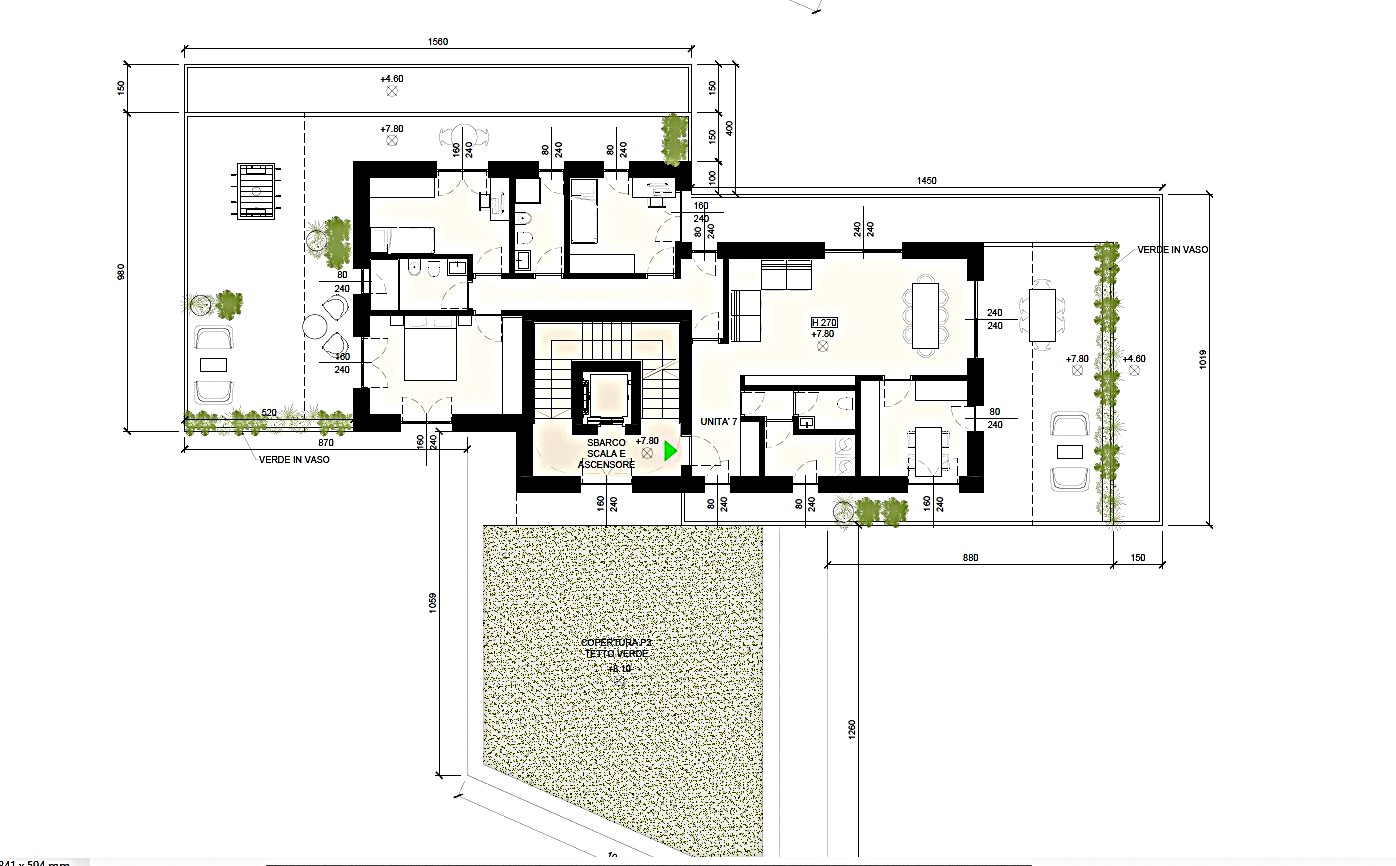
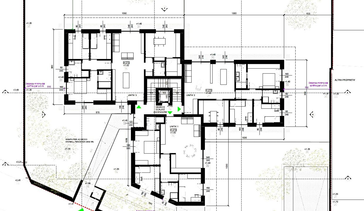
E’ stato realizzato un progetto di riqualificazione dell’area che prevede la realizzazione di un piccolo complesso residenziale costituito da 7 appartamenti con giardino o terrazzo, per ciascuno è prevista una cantina ed una autorimessa.
Per informazioni su questa AREA DI RIGENERAZIONE URBANA A MONTICELLO BRIANZA potete trovarci presso la nostra Agenzia Immobiliare di Lecco in Via Mascari 69/A, al numero 0341 350573 oppure al nostro indirizzo mail: [email protected].